Bauleitplanung / Städtebau
von Lara
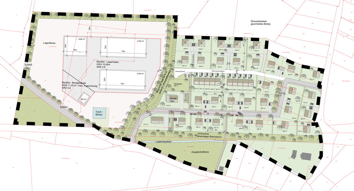
Bebauungsplan Nr. 90 "Wohn- und Gewerbegebiet ehemalige Getreidetrocknung Zatzschke" Stadt Pirna
Das Gewerbegebiet der ehemaligen Getreidetrockung, prominent am Eingang zur Herrenleite gelegen, erfährt eine deutliche Änderung seiner Gestalt und Nutzung. Ein Großteil der Fläche wird als Wohngebiet mit dörflicher Prägung und kleiner Orts-Mitte entwickelt. Verschiedenen Wohnformen vom Einzel- bis zum Reihenhaus prägen den neuen Ortsteil. Durch die topografische Bevorzugung am Südhang und die Einflechtung großzügiger Grünbänder gelingt ein Anklang an die Gartenstädte des Anfangs des 20. Jahrhunderts.
Auftraggeber
Stadtentwicklungsgesellschaft Pirna GmbH
und Containerdienst Silvio Janke
Zeitraum
seit 2019
Leistung
Städtebaulicher Entwurf, Bebauungsplan,
Umweltbericht, Grünordnungsplan
Geltungsbereich
ca. 8,36 ha
