Aktuelles
Juli 2024
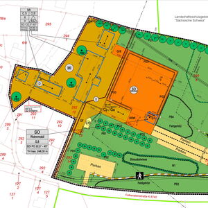
Bebauungsplan "Wanderparkplatz/Wohnmobilcamping Ostrau"
Der Bebauungsplan "Wanderparkplatz/ Wohnmobilcamping Ostrau" der Stadt Bad Schandau wurde durch das Landratsamt SOE genehmigt. Mit der öffentlichen Bekanntmachung der Genehmigung wird der Bebauungsplan rechtskräftig.
Juni 2024
Büroausflug zur Landesgartenschau in Bad Dürrenberg
Im Juni hat sich das Büro aufgemacht, die Landesgartenschau in Bad Dürrenberg zu besichtigen. Intensiv wurden die Pflanzungen betrachtet und die Spielplätze getestet, um neue Anregungen und Ideen zu sammeln und die harmonische Anlage zu genießen. Wir danken Conny Duckert für die Einladung und die interessante Führung!
Juni 2024
Fertigstellung der Außenanlagen in der EAE Hammerweg Dresden
Die Bauarbeiten zur Erweiterung der Grünanlagen, Ergänzung der Einfriedungen und zum Neubau des Spielplatz in der EAE Hammerweg wurden pünktlich zum Kindertag abgeschlossen und an die Betreiber und Bewohner übergeben.
März 2024
Ostergrüße!
Wir wünschen ein frohes Osterfest verbunden mit einem herzlichen Dank für die gute Zusammenarbeit.
Januar 2024
Bebauungsplan "Windpark Grüntal Nord" Genehmigung erteilt
Der Bebauungsplan "Windpark Grüntal Nord" der Gemeinde Sydower Fließ OT Grüntal in Brandenburg wurde von der Höheren Verwaltungsbehörde des Landkreises Barnim genehmigt. Mit öffentlicher Bekanntmachung der Genehmigung wird der Bebauungsplan rechtskräftig.
(Visualisierung: Ramboll)
Oktober 2023
Baustart für einen Spielplatz in der EAE Hammerweg Dresden
Zum Herbst haben die Arbeiten in den Freianlagen der EAE Hammerweg begonnen. Hier soll auf einer Grünfläche ein neuer Spieplatz enstehen.
Juli 2023
Zuschlag für die Neue Branitzer Baumuniversität
Wir freuen uns über den Zuschlag für die Planung der Frei- und Verkehrsanlagen der Neuen Branitzer Baumuniversität als Teil der Pückler'schen Parkanlage und auf die Zusammenarbeit mit der Stiftung und den Projektpartnern!
Juli 2023
Fertigstellung der XPlan-konformen Digitalisierung des FNP's der Gemeinde Wilsdruff
Diesen Monat konnten wir der Stadt Wilsdruff die erfolgreiche Digitalisierung ihres rechtswirksamen Flächennutzungsplanes mit einem Umfang von ca. 8.160 ha im XPlan-Format übergeben. Damit verfügt die Gemeinde über ein modernes Instrument der Bauleitplanung. Wir bedanken uns für die vertrauensvolle Zusammenarbeit und für die Möglichkeit, die Stadt Wilsdruff mit dieser konkreten Anwendung der XPlanung ein Stück auf dem Weg in die Zukunft begleiten zu dürfen.
Juni 2023
IFZ Schokoladenfabrik - Integratives Familienzentrum des DKSB Dresden
Die Freianlagen für das Integrative Familienzentrum "Schokofabrik" des DSKB in der Dresdner Johannstadt sind fertig gestellt und der Nutzer frisch eingezogen.
Juni 2023
Abschluss der Ökologischen Baubegleitung zur Offenlegung Wiesengraben
Im Rahmen der ökologischen Baubegleitung wurde die Offenlegung des Wiesengrabens 1. BA und Interim durch Beratung des Auftraggebers, des Objektplaners und der Baufirma zur sach- und fachgerechten Planung, Ausschreibung und Durchführung der Gewässeroffenlegung und zur Umsetzung der naturschutzfachlichen Maßnahmen wie z.B. Biotopflächen, Bepflanzungen und Schutz von Bestandsflächen begleitet.
